Skoči na glavno vsebino

Zahteva za ponudbo

Paletni regal

Izpolnite čim več polj in nato kliknite "Pošlji povpraševanje". Dodatne informacije za razširjeno povpraševanje ali posamezno ponudbo lahko vnesete na koncu obrazca pod "Dodatne informacije". Najlepša hvala!

Splošne informacije:
Kaj želite shraniti?
Tip regala:
Namestitev/uporaba:
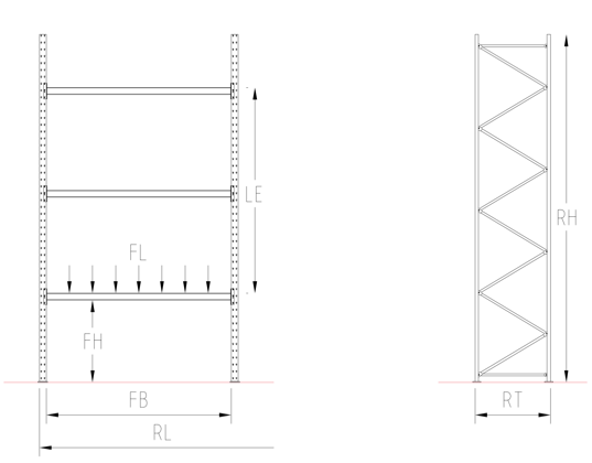
Dimenzije regalov:
(Neobvezno, za razlago enot glejte legendo spodaj).
Nosilnost:
(Za razlago enot glejte legendo)
Za zunanjo namestitev s streho:
Barva regalov:
Montaža:
Izkoristite prednosti montaže, ki jo izvajajo naše usposobljene OHRA ekipe.
Dodatne informacije:
Absenden